THE GALLERIA


Design Story
Location: Manhattan, New York
Urban Mixed Use Complex
Program: Housing, Arts Spaces, Retail, Public Programming, Event Space
![]()
Location: Manhattan, New York
Urban Mixed Use Complex
Program: Housing, Arts Spaces, Retail, Public Programming, Event Space

There it was, living, breathing, active! A visual gallery dances across the facade of this mixed-use housing and arts complex, The Galleria. The Galleria is located between 17th and 18th street, along both the Highline and waterfront. This double courtyard mega-block community is made up of three levels of public programming that then give way to towers of family, couple, and bachelor housing units.
This unique siting made the building’s response to the context that more vital to the design process. Through a rigorous study of courtyard and slab building precedents, a formal gesture began to form. It was important to maintain the highline’s nestling and snaking through the urban grid of this neighborhood, while opening up strategic pockets. So, two outdoor courtyards emerged from elevated ground plane at the level of the highline. This allowed the urban density of Manhattan to be maintained at the ground level, while creating a more spacious pause at the level of the high line. The highline pierces through the first courtyard, inviting activity to flow into the more intimate courtyard of the complex. Just imagine traversing through the crowded streets of Manhattan, and on that journey finding a moment where you could pause and get a breath of fresh air. And Finding yourself in the welcoming atmosphere of The Galleria. This space allows for various programmed and unprogrammed possibilities for community building. A standard for how this building amplifies the living use of space through its layout, planning, and programming is established.
The arts Center is the first smaller tower that greets you. Galleries on the first and second level facilitate direct engagement with the vibrant art community of Chelsea and New York City as a whole. In the upper level rooms there are dance studios, music practice rooms, theatres, artist studios, and workspaces for these creatives. The glass facade of this building allows the building to come alive and serve as a visual gallery of the programming that takes place in it. The building becomes a living host for nurturing, developing, creating, and celebrating the arts. This creative community not only deals with the Arts Center but extends into the homes of those within the housing portion of this mixed-use structure.
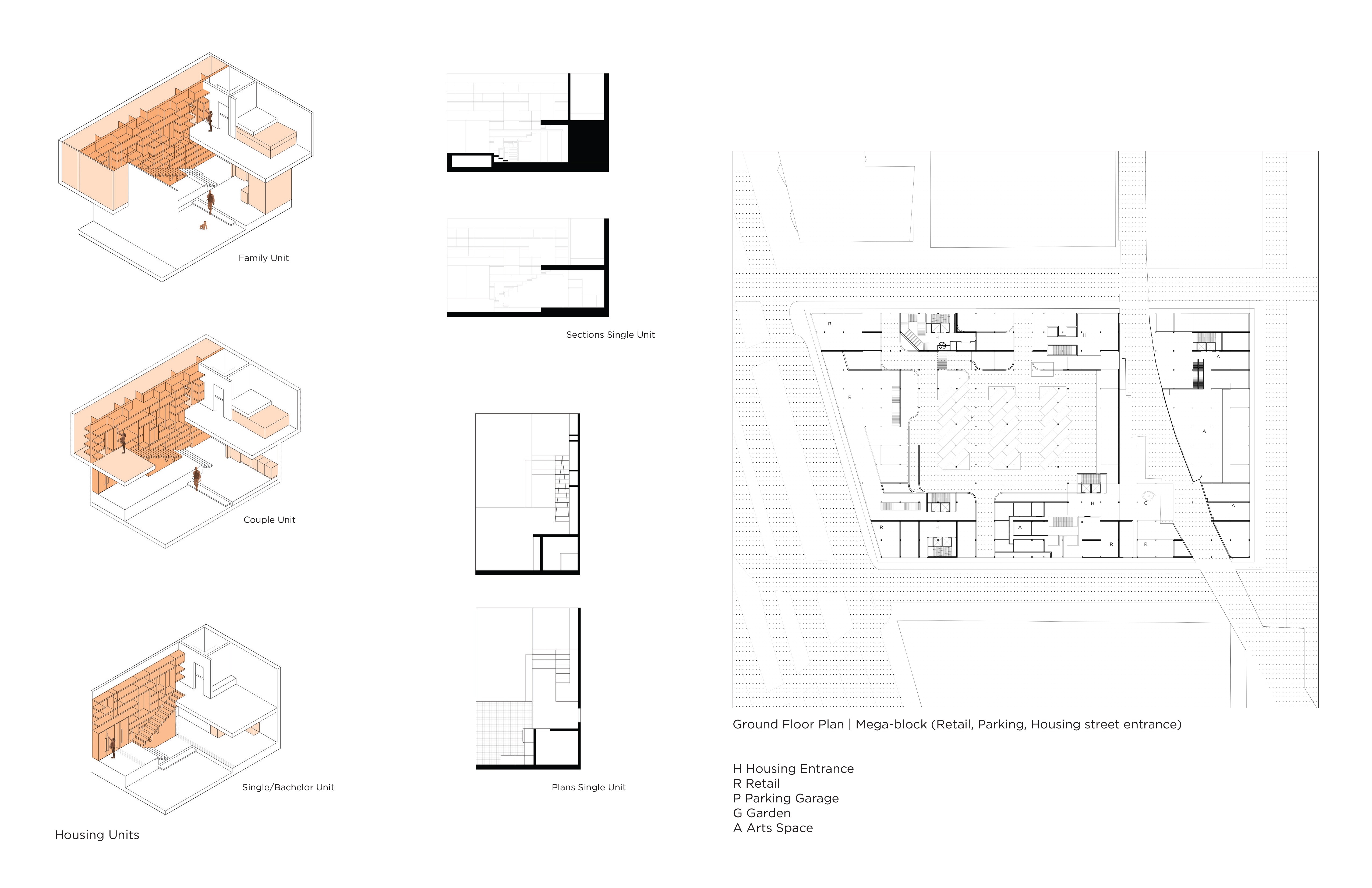
Each unit type is based on the idea of storage and how can each resident begin to curate their home as their own gallery. Through an engaging shelving system, residents can personalize an entire wall within their apartments that serves as storage, seating, structure, and circulation thresholds. With a more opened floor plan, spaces are separated by elevation of the floor planes. The flexibility of the housing units creates a tailored experience for each resident. Beyond the units, Interior courtyard gardens create moments for residents to interact and build cross cultural and cross generational relationships. The Galleria is painting a future community through its performative architectural spaces
This unique siting made the building’s response to the context that more vital to the design process. Through a rigorous study of courtyard and slab building precedents, a formal gesture began to form. It was important to maintain the highline’s nestling and snaking through the urban grid of this neighborhood, while opening up strategic pockets. So, two outdoor courtyards emerged from elevated ground plane at the level of the highline. This allowed the urban density of Manhattan to be maintained at the ground level, while creating a more spacious pause at the level of the high line. The highline pierces through the first courtyard, inviting activity to flow into the more intimate courtyard of the complex. Just imagine traversing through the crowded streets of Manhattan, and on that journey finding a moment where you could pause and get a breath of fresh air. And Finding yourself in the welcoming atmosphere of The Galleria. This space allows for various programmed and unprogrammed possibilities for community building. A standard for how this building amplifies the living use of space through its layout, planning, and programming is established.
The arts Center is the first smaller tower that greets you. Galleries on the first and second level facilitate direct engagement with the vibrant art community of Chelsea and New York City as a whole. In the upper level rooms there are dance studios, music practice rooms, theatres, artist studios, and workspaces for these creatives. The glass facade of this building allows the building to come alive and serve as a visual gallery of the programming that takes place in it. The building becomes a living host for nurturing, developing, creating, and celebrating the arts. This creative community not only deals with the Arts Center but extends into the homes of those within the housing portion of this mixed-use structure.
Each unit type is based on the idea of storage and how can each resident begin to curate their home as their own gallery. Through an engaging shelving system, residents can personalize an entire wall within their apartments that serves as storage, seating, structure, and circulation thresholds. With a more opened floor plan, spaces are separated by elevation of the floor planes. The flexibility of the housing units creates a tailored experience for each resident. Beyond the units, Interior courtyard gardens create moments for residents to interact and build cross cultural and cross generational relationships. The Galleria is painting a future community through its performative architectural spaces
Process, Form, Exterior/Interior Relationships
